
Preview
Technical Drawing Digitization & CAD Data Creation
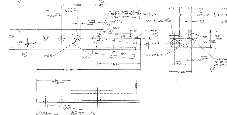
Convert old drawings into accurate, editable CAD files - fast, secure, and production-ready.
Do you have paper drawings, scanned images, or PDF files that need to be converted into precise CAD data?
We provide professional technical drawing digitization and CAD file creation services, helping you modernize documentation, reduce costs, and protect valuable engineering assets.
🛠️ What We Work With
- Paper drawings (hand-drawn, blueprints, photocopies)
- Scanned files, images, or legacy documents
- PDF technical drawings
- Conversion to CAD formats (DWG, DXF, 2D/3D models)
✅ Key Benefits
- Edit, update, and reuse technical data with ease
- Centralized, digital storage of your designs
- Improved security and data preservation
- Save time and operational costs
- Prepare your legacy documents for modern manufacturing
📄 Supported Formats & Software
- AutoCAD (DWG, DXF)
- Autodesk Inventor (IPT, IAM, IDW)
- SolidWorks (SLDPRT, SLDDRW)
- Creo (PRT, ASM, DRW)
- Optional export to STEP, IGES, PDF, or per client request
📌 Request a Free Sample
Review: Send us your drawing samples today - we'll assess your needs and recommend the most efficient solution at no cost.
Preview

Preview

